
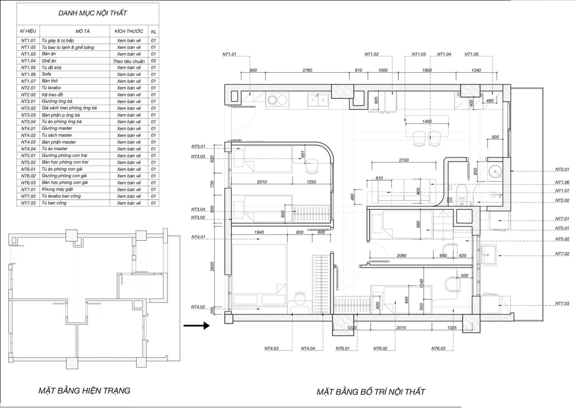
Căn hộ ban đầu có 2 phòng ngủ, 1 vệ sinh, phù hợp với gia đình nhỏ. Để có không gian riêng cho ba thế hệ khi ông bà chuyển đến ở cùng, chủ nhà quyết định cải tạo toàn diện. KTS giữ lại phần kết cấu chính, sắp xếp lại toàn bộ mặt bằng theo hướng tối ưu hóa công năng.
Dự án hoàn thành sau 50 ngày thi công, với chi phí khoảng 500 triệu đồng. Căn hộ sau cải tạo có 4 phòng ngủ và các không gian chức năng cho 6 người trong đại gia đình. Không chỉ thay đổi hình thức, quá trình thiết kế hướng đến việc đồng bộ nhịp sống, giúp từng thành viên có góc riêng nhưng vẫn kết nối với nhau trong không gian chung.
Căn hộ ban đầu có 2 phòng ngủ, 1 vệ sinh, phù hợp với gia đình nhỏ. Để có không gian riêng cho ba thế hệ khi ông bà chuyển đến ở cùng, chủ nhà quyết định cải tạo toàn diện. KTS giữ lại phần kết cấu chính, sắp xếp lại toàn bộ mặt bằng theo hướng tối ưu hóa công năng.
Dự án hoàn thành sau 50 ngày thi công, với chi phí khoảng 500 triệu đồng. Căn hộ sau cải tạo có 4 phòng ngủ và các không gian chức năng cho 6 người trong đại gia đình. Không chỉ thay đổi hình thức, quá trình thiết kế hướng đến việc đồng bộ nhịp sống, giúp từng thành viên có góc riêng nhưng vẫn kết nối với nhau trong không gian chung.

Trước khi cải tạo, căn hộ chỉ có 2 phòng ngủ và 1 vệ sinh. Bản thiết kế mặt bằng nội thất sau cải tạo đã có sự phân chia lại toàn bộ không gian từ 2 phòng thành 4 phòng chức năng riêng biệt.
Khu bếp trong góc nhà được chuyển ra hành lang. Khu vực phòng khách cũ được chuyển thành phòng ngủ cho ông bà. Một phòng ngủ được chia đôi thành 2 phòng ngủ nhỏ cho 2 bé.
Trước khi cải tạo, căn hộ chỉ có 2 phòng ngủ và 1 vệ sinh. Bản thiết kế mặt bằng nội thất sau cải tạo đã có sự phân chia lại toàn bộ không gian từ 2 phòng thành 4 phòng chức năng riêng biệt.
Khu bếp trong góc nhà được chuyển ra hành lang. Khu vực phòng khách cũ được chuyển thành phòng ngủ cho ông bà. Một phòng ngủ được chia đôi thành 2 phòng ngủ nhỏ cho 2 bé.

Khu vực này theo hiện trạng cũ là bàn ăn và một phần nhà vệ sinh. Nhà vệ sinh được thu hẹp, nhường diện tích cho khu sinh hoạt chung, nơi cả gia đình cùng quây quần.
Tổng thể không gian giữ được sự thông thoáng nhờ bố trí ánh sáng hợp lý và lựa chọn tông màu trung tính. Hệ nội thất đa năng là giải pháp chủ đạo như bàn ăn kết hợp kệ tủ, giường tích hợp ngăn kéo chứa đồ, giường tầng liền bàn học… Căn nhà sử dụng vật liệu gỗ sáng kết hợp hệ tủ ốp tường tạo cảm giác liền mạch, tăng diện tích sử dụng.
Khu vực này theo hiện trạng cũ là bàn ăn và một phần nhà vệ sinh. Nhà vệ sinh được thu hẹp, nhường diện tích cho khu sinh hoạt chung, nơi cả gia đình cùng quây quần.
Tổng thể không gian giữ được sự thông thoáng nhờ bố trí ánh sáng hợp lý và lựa chọn tông màu trung tính. Hệ nội thất đa năng là giải pháp chủ đạo như bàn ăn kết hợp kệ tủ, giường tích hợp ngăn kéo chứa đồ, giường tầng liền bàn học… Căn nhà sử dụng vật liệu gỗ sáng kết hợp hệ tủ ốp tường tạo cảm giác liền mạch, tăng diện tích sử dụng.
Bếp và khu ăn uống được di chuyển ra hành lang, kết nối liền mạch với không gian vào nhà.
Bàn ăn kết hợp tủ lưu trữ liền khối, đặt dưới vòm gỗ tạo điểm nhấn thị giác.

Hệ tủ âm cao sát trần tích hợp lò nướng, lò vi sóng và các thiết bị gia dụng giúp tối ưu diện tích, giữ không gian gọn gàng, liền mạch.
Hệ tủ âm cao sát trần tích hợp lò nướng, lò vi sóng và các thiết bị gia dụng giúp tối ưu diện tích, giữ không gian gọn gàng, liền mạch.

Các góc tường được bo cong để tăng độ an toàn khi di chuyển, đồng thời tạo cảm giác mềm mại cho không gian nhỏ.
Các góc tường được bo cong để tăng độ an toàn khi di chuyển, đồng thời tạo cảm giác mềm mại cho không gian nhỏ.

Phòng ngủ ông bà được bố trí hai giường đơn tách biệt, tông màu nâu nhạt tạo cảm giác ấm cúng và dễ chịu cho người lớn tuổi.
Phòng ngủ ông bà được bố trí hai giường đơn tách biệt, tông màu nâu nhạt tạo cảm giác ấm cúng và dễ chịu cho người lớn tuổi.

Phòng ngủ vợ chồng sử dụng tông gỗ sáng kết hợp mảng tường xanh dương, bố trí liền kề bàn làm việc để tối ưu diện tích và công năng.
Phòng ngủ vợ chồng sử dụng tông gỗ sáng kết hợp mảng tường xanh dương, bố trí liền kề bàn làm việc để tối ưu diện tích và công năng.

Phòng ngủ cũ được chia đôi để tạo hai không gian nhỏ cho bé trai và gái. Diện tích giới hạn nhưng vẫn đảm bảo mỗi trẻ có không gian riêng tư. Phòng bé trai thiết kế giường tầng kết hợp tủ đồ và giá sách, sử dụng gam xanh nhạt để tạo cảm giác mát mắt, tối ưu chiều cao trần nhà.
Phòng ngủ cũ được chia đôi để tạo hai không gian nhỏ cho bé trai và gái. Diện tích giới hạn nhưng vẫn đảm bảo mỗi trẻ có không gian riêng tư. Phòng bé trai thiết kế giường tầng kết hợp tủ đồ và giá sách, sử dụng gam xanh nhạt để tạo cảm giác mát mắt, tối ưu chiều cao trần nhà.

Phòng bé gái sử dụng bảng màu pastel, tích hợp giường, bàn học và kệ sách trong không gian nhỏ, tạo góc sinh hoạt riêng.
Phòng bé gái sử dụng bảng màu pastel, tích hợp giường, bàn học và kệ sách trong không gian nhỏ, tạo góc sinh hoạt riêng.
Bích Phương
Đơn vị thiết kế, thi công: Lavia Concept VN